本周五,美国总统特朗普的白宫宴会厅(一头沉)项目最详细渲染图短暂对外公布,展示了

司马平武器吧 2026-02-15 12:31:43

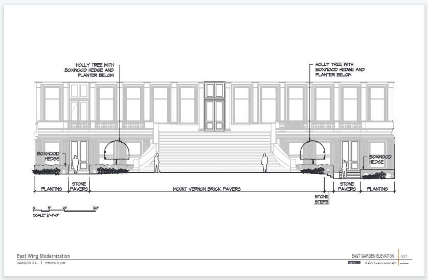
本周五,美国总统特朗普的白宫宴会厅(一头沉)项目最详细渲染图短暂对外公布,展示了这个计划中占地8.9万平方英尺的空间的巨大规模。

这些由沙洛姆·巴兰斯联合事务所制作的渲染图被美国国家首都规划委员会发布在其网站上,但随后又很快被撤下,原因不详。

其渲染图显示,新的白宫东翼可能横跨大约一个街区,比西翼要长得多。它看起来长度甚至超过了位于旁边的财政部大楼的一半。

但是,该项目正面临美国的顶级历史保护组织的法律挑战。上个月,一名联邦法官对特朗普在未获得国会明确授权的情况下建造宴会厅的权力表示了高度质疑,然而,工程的施工仍在继续。

特朗普早些时候曾经声称该项目进度提前且预算内。白宫还表示,该宴会厅将由私人资本资助。

“建成后,它将是世界上建造的最华丽的宴会厅,一个150多年来总统们一直渴望拥有的场所——现在他们将得到最好的!”特朗普在真实社交(Truth Social)上发帖称,并补充说未来的总统就职典礼(传统上在国会大厦举行)有可能会会在该宴会厅举行。

国家首都规划委员会定于3月5日召开会议讨论该提案。特朗普已任命其忠实支持者担任NCPC成员,以及负责审查宴会厅设计的另一机构——美术委员会的成员。

东翼的拆除工作于去年10月开始,这个空间将扩大建筑的娱乐容量,同时也类似于他私人俱乐部的镀金空间。宴会厅的最新造价估计为4亿美元,该项目的私人捐赠者包括如下私营企业:苹果、亚马逊、洛克希德·马丁、微软、谷歌、Coinbase、康卡斯特和元宇宙等知名公司。

由些可见,美国资本家们一旦舔起特朗普这样的独裁者也是根本没有底线的。

0 阅读:1
司马平武器吧

司马平武器吧

感谢大家的关注