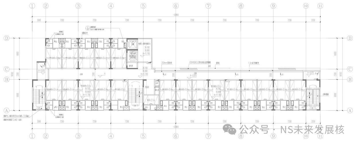
【南沙滨海实验学校宿舍即将开建!】广州南沙经济技术开发区建设中心发布广州市南沙区滨海实验学校新建宿舍楼项目设计施工总承包。根据介绍,该项目建设总投资3973.15万元(含建设用地费用80.38万元)。 本次项目建设内容包括新建师生宿舍楼1栋,新建连廊将宿舍一楼与已建三号楼连通,新建配套道路广场、给排水、绿化等室外工程。 本次招标开标日期为12月24日,顺利的话宿舍有望在明年年初开建。根据早前可行性研究宝可以看到,项目工期需要14个月,施工期间将会对学生上课和接送等造成一些影响。尤其是对小学部的学生影响会比较大。 希望这个项目可以缩短工期,尽量减少影响吧!



