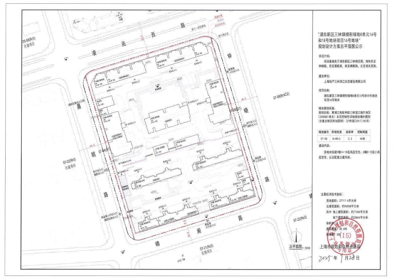
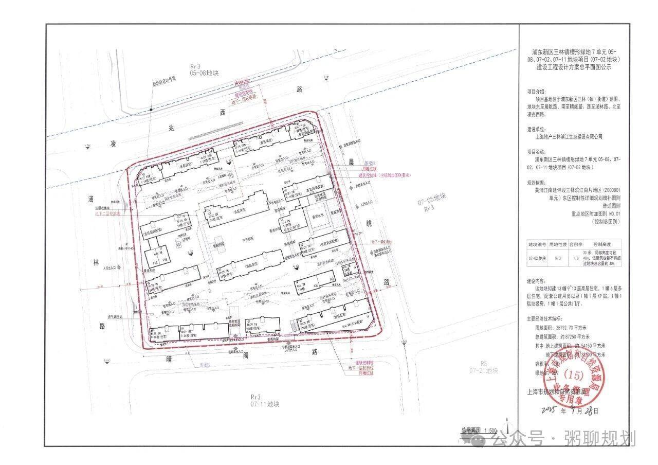
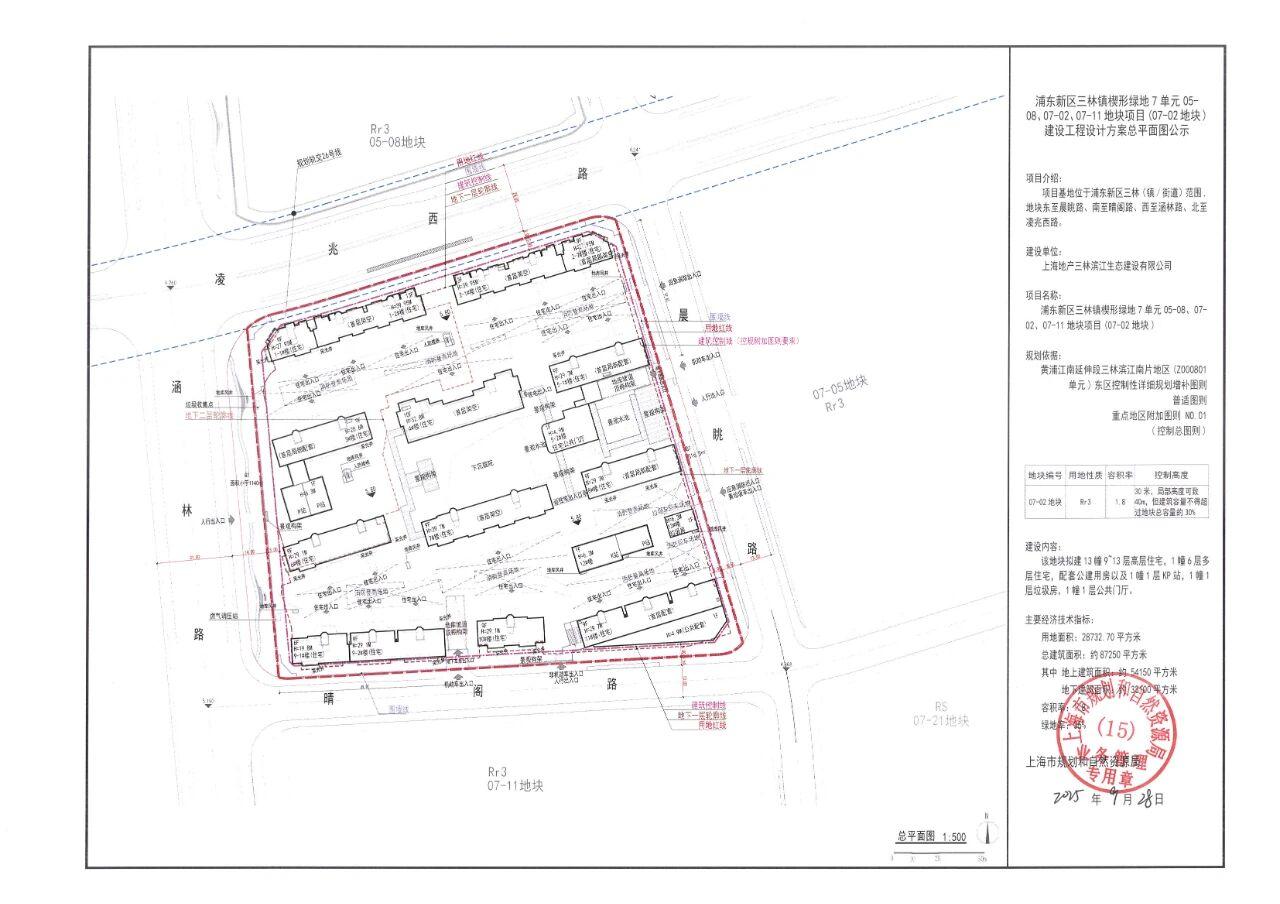
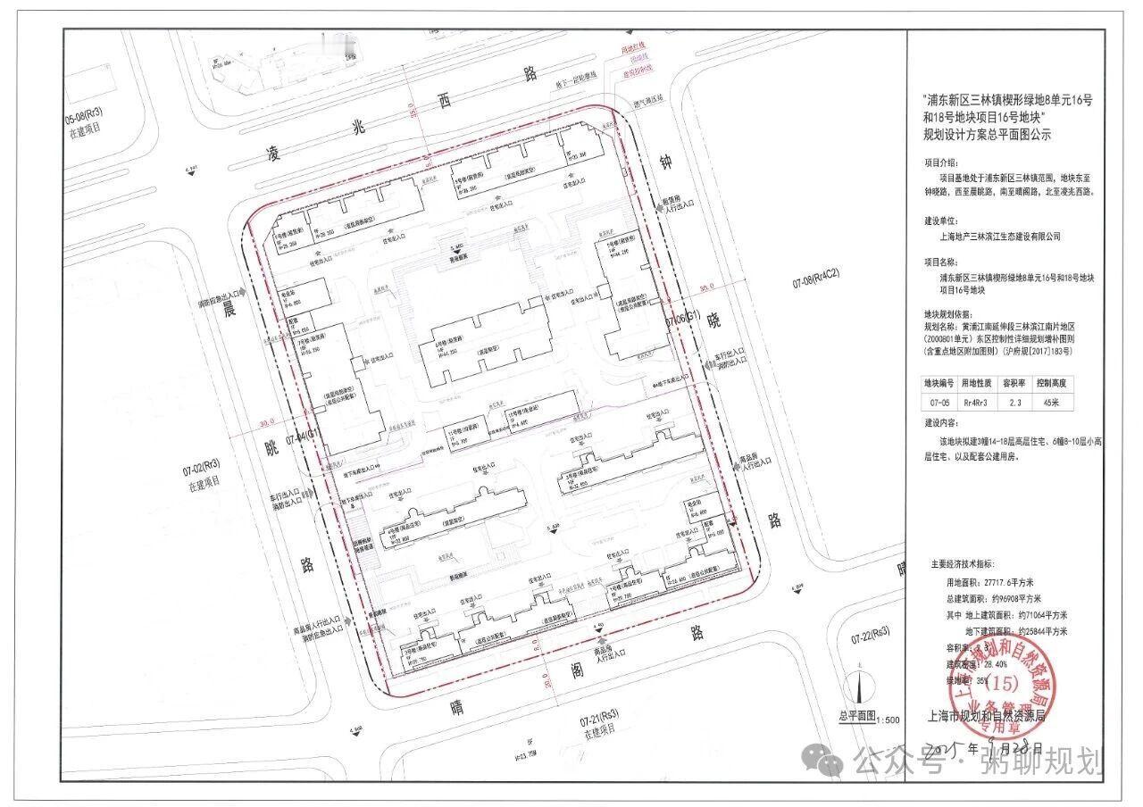
浓眉大眼的前滩南,住宅缩量了? 前滩南中企云萃森林南的2块地(07-05、07-08)控规调整(图2)。 07-05地块从三类住宅调整为三、四类住宅混合(Rr4Rr3,比例Rr4≥70%,Rr3≤30%),容积率2.3、限高45米。包括4栋8-10层商品住宅,5栋8-18层小高层租赁住宅。(图4) 07-06地块从三类住宅、商业混合调整为四类住宅、商业混合(Rr4C2,比例Rr4≤85%,C2≥15%),容积率2.5、限高60米。包括4栋高层租赁住宅(最高17层)+2栋2层商业单位。 另外07-05地块西侧的07-02地块方案公示,性质指标没调,容积率1.8、限高30米(局部40米)。包括13栋9-13层高层住宅、1栋6层多层住宅。(图3) 小结:其实主要是把07-05、07-08地块中的商品住宅改成租赁住宅了,拍脑袋猜测是为了完成租赁指标,毕竟这里控制下总价,市场没啥问题。
上面是怎么用新房刺激那些有钱人买房。就是靠提高品质,把新房盖的和现在的二手房差距
【1评论】【11点赞】