ICX资讯网
真的只有110平真的是四室#房屋设计图#
生活小窍门
2023-08-01 15:43:08
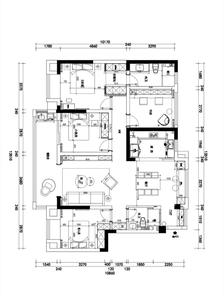
建筑面积127平,套内110平 洋房得房率本来就高 再加上开发商赠送了点面积 四室两厅两卫 有限的空间,好在分配比较合理 咱们普通人装修显大、宽敞、耐看很重要 装修设计很重要,图九是基于我家户型图,设计的平面布置图, 入住快一年了,房子逐渐住成了家 真的太爱了!
0
阅读:1
生活小窍门
每天分享更多生活视频,谢谢你的关注
作者最新文章
1
真的只有110平真的是四室#房屋设计图#
2
安全生产月活动总结!#安全生产月#
3
安全生产月活动总结#安全生产月#
4
安全生产月发言稿#安全生产月#
5
安全月优秀征文#安全生产月#
6
学校安全生产月活动总结#安全生产月#
7
认识下奢侈品的鄙视链#奢侈品牌#
8
最全奢侈品品牌科普#奢侈品牌#
9
最全奢侈品品牌大全#奢侈品牌#
10
各大奢侈品品牌的段位!#奢侈品牌#
热门分类
推荐
热榜
军事
NBA
体育
社会
明星八卦
娱乐
财经
科技
汽车
历史
国际
游戏
动漫
公益
搞笑
商业
互联网
数码
国际足球
房产
家居
时尚
科学探索
职场
育儿
股票
教育
影视
情感
热点
中国军情
武器
中国南海
中国足球
亚洲杯
科比
综合体育
CBA
投资
大咖秀
外汇
创业
风口
SUV
豪车
概念车
优惠
新能源
美国
欧洲
朝日韩
俄罗斯
孕期
街拍
婚姻
正能量